Association Godavari
soutien aux enfants défavorisés du Népal et dans le monde
projets
tremblement de terre 2015

Tremblement de terre

Une série de séismes très violents a frappé le Népal depuis le 25 avril 2015. La première secousse, de magnitude 7,8 sur l’échelle de Richter, avait son épicentre à une septantaine de kilomètres au nord de Katmandou et a été ressentie jusqu’à New Delhi. Plusieurs répliques importantes ont suivi, dont trois d’une magnitude plus élevée que 7 le 12 mai 2015.

Les chiffres officiels parlent de près de 10'000 morts, et les dégâts sont très importants. On estime à 600'000 le nombre de maisons endommagées ou complètement détruites dans le pays. Pour la seule ville de Katmandou, près de 25'000 maisons, qui sont encore debout, doivent être démolies et entièrement reconstruites pour la sécurité de leurs habitants.

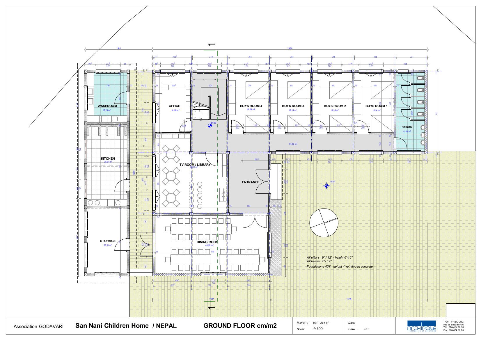
C’est le cas de l’orphelinat « San Nani Children Home » à Baregaun, près de Katmandou, que nous soutenons depuis de nombreuses années. Abritant une septantaine d’enfants, tous sains et saufs après les séismes, l’orphelinat semblait avoir résisté. Mais les secousses du 12 mai lui ont donné le coup de grâce. Les fissures dans les murs et les dalles complètement désolidarisées des murs rendent probable un effondrement total du bâtiment. Les enfants ont donc abandonné l’édifice et vivent dans des baraquements provisoires dans le jardin du home.

Après avoir fourni une aide d’urgence aux enfants et à leurs entourages (tentes, nourriture, eau), notre association a décidé de financer la reconstruction du bâtiment au même endroit que le précédent


Pour ce faire, il faudra rapidement démolir l’orphelinat de San Nani, créer des piliers de consolidation et construire un nouveau bâtiment de deux étages comprenant quatre chambres pour les filles, quatre chambres pour les garçons (environ huit enfants par chambre), des locaux sanitaires (toilettes et douches), une cuisine, un réfectoire et des locaux communautaires. Afin de continuer à pouvoir abriter des enfants orphelins, le bâtiment devra correspondre aux normes gouvernementales en vigueur pour ce type de construction.

Actuellement, le président de l’Association réalise les plans de l’édifice et en estime les coûts avec les responsables locaux. Suite au tremblement de terre, les coûts de construction ont considérablement augmenté, notamment en raison de la pénurie de matériaux. Pour exemple, le coût des briques a été multiplié par six, du fait de la disparition de nombreuses briqueteries.

Etant donné qu’il n’est pas nécessaire de mettre à l’enquête ce bâtiment qui n’est que la reconstruction d’un bâtiment existant, les travaux pourront commencer en septembre ou octobre 2015, et devraient s’achever pour l’hiver 2016/2017. Il est nécessaire d’agir vite, car les enfants devront survivre un hiver dans les abris provisoires qui ne sont pas du tout chauffés.